



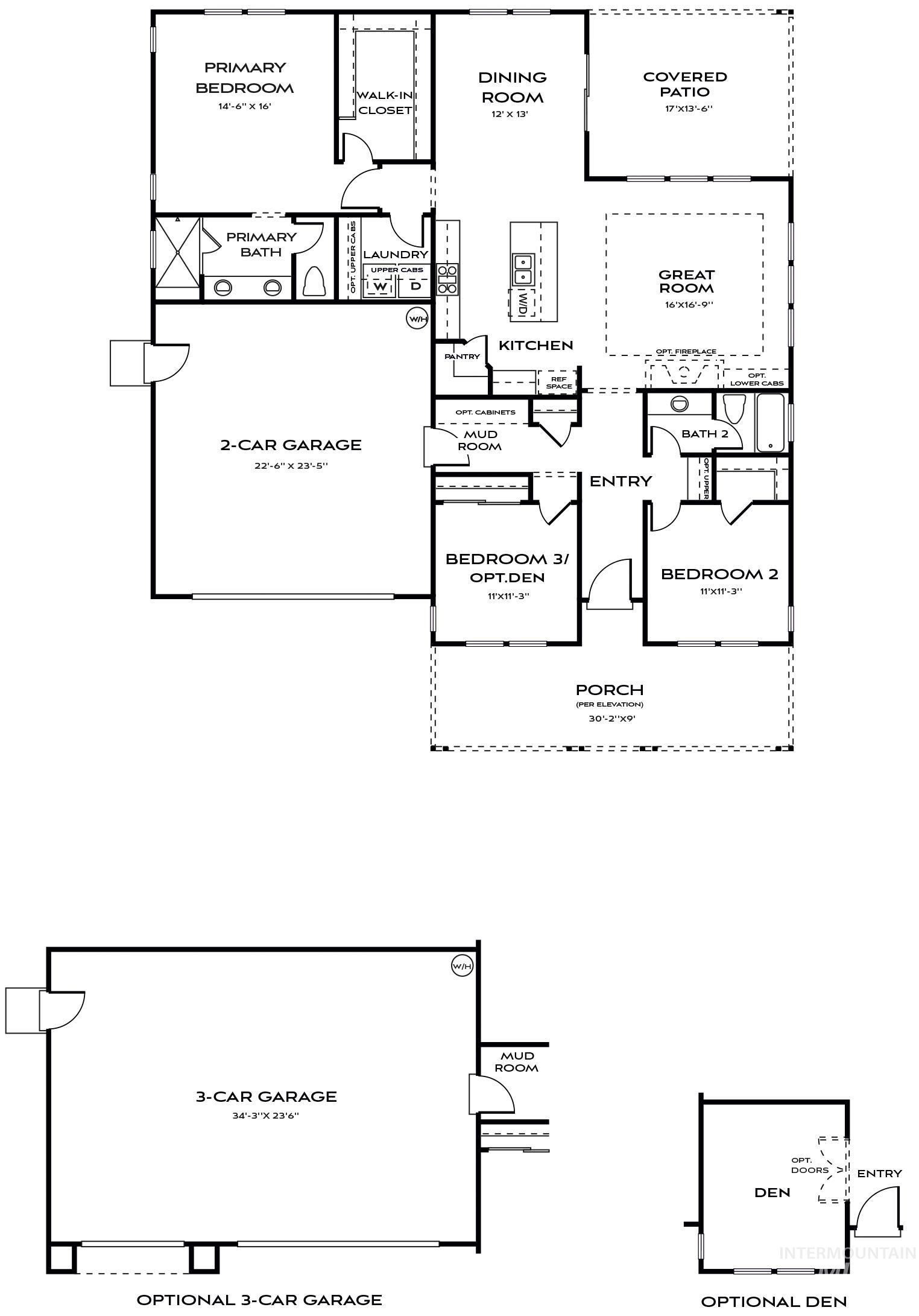
Discover this beautifully designed 3-bedroom,2-bath home featuring an expansive open concept living area, ideal for modern living. This home is thoughtfully upgraded throughout. A few favorite features are a cozy fireplace in the spacious great room, an abundance of windows allowing warmth and brightness into every corner, and rich shaker stained alder cabinets are throughout the home. The laundry room is decked out with an abundance of cabinets for added functionality. This home offers a 3 car garage and fully landscaped front and back yards. Enjoy refined living in the heart of Kimberly. Walking distance to schools and grocery. To view, stop in the on site sales office. OPEN DAILY 10am- 5pm. Association dues covers irrigation water for yards.
| 3 weeks ago | Listing updated with changes from the MLS® | |
| 2 months ago | Price changed to $515,000 | |
| 5 months ago | Listing first seen on site |
Did you know? You can invite friends and family to your search. They can join your search, rate and discuss listings with you.