



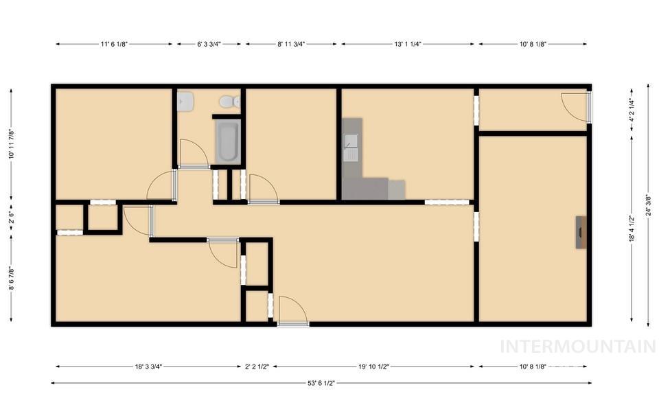
Dual-zoned for residential or commercial use, this 4-bed home offers prime access on Vista Ave just minutes from BSU and Downtown Boise. Features include original hardwood floors, newer furnace and tankless water heater, and a large backyard.
| 2 weeks ago | Listing updated with changes from the MLS® | |
| 2 weeks ago | Price changed to $409,000 | |
| 5 months ago | Listing first seen on site |
Did you know? You can invite friends and family to your search. They can join your search, rate and discuss listings with you.