Browse Properties

Homes for sale in Idaho

Search Filters
Save
Ask
Tour
Hide
Share
$937,000
94 Days On Site

1020 E F Street
Moscow, ID 83843

For Sale|Single Family Residence|Active
8
Beds
3
Total Baths
5,785
SqFt
$162
/SqFt
1915
Built
Subdivision:
0 Not Applicable
County:
Latah
Listing courtesy of Moscow Realty jen@moscowrealty.com
Call Now: 208-308-9500
Is this the listing for you? We can help make it yours.
208-308-9500
1020 E F Street1020 E F Street1020 E F Street1020 E F Street
Save
Ask
Tour
Hide
Share

Mortgage Calculator

Monthly Payment (Est.)

$4,275
Calculator powered by Showcase IDX, a Constellation1 Company. Copyright ©2025 Information is deemed reliable but not guaranteed.

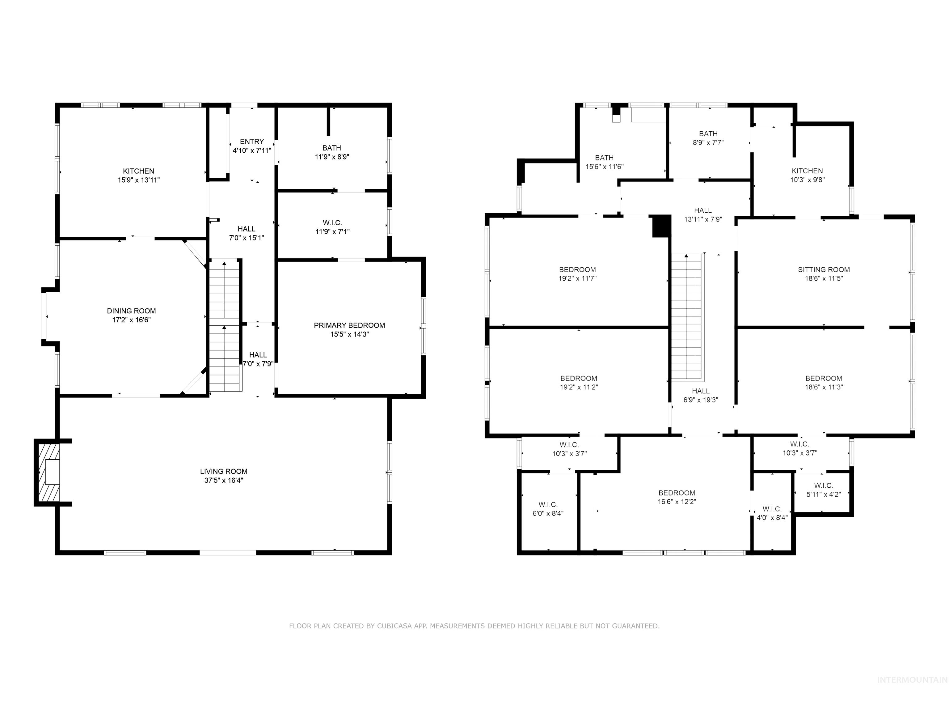
Historic property on .91 acres includes three structures - a main house, carriage house, and garage. The main house features a single-family home with nearly 3,400 sqft and includes 5 bedrooms and 3 baths. Below grade are two rental units that could be added back to the residence to create a single-family home with 7 bedrooms and 5 baths creating a nearly 4,500 sqft home. Carriage house includes 2 finished units and additional basement storage. All spaces have separate exterior access. Photos show single family home floorplan layout and rental units with photos of each space. Maintenance of the property includes a new roof on main house in '06, original windows replaced in '13, new roof on carriage house and shop in '14, Munchkin boiler at main house replaced '17, metal fascia installed on all in '25, electrical panel updated to 400-amp service with new panels, and restored hardwood floors. Landscaping includes xeriscaping, rock gardens, terraced north hillside, and arbor service. Borders 2.14-acre Rotary Park.

Save
Ask
Tour
Hide
Share
Listing Snapshot
Price 
$937,000
Days On Site 
94 Days
Bedrooms 
8
Inside Area (SqFt) 
5,785 sqft
Total Baths 
3
Full Baths 
N/A
Partial Baths 
N/A
Lot Size 
0.91 Acres
Year Built 
1915
MLS® Number 
98956961
Status 
Active
Property Tax 
$6,258.74
HOA/Condo/Coop Fees 
N/A
Sq Ft Source 
N/A
Friends & Family
Recent Activity
2 weeks agoListing updated with changes from the MLS®
3 weeks agoStatus changed to Active
3 months agoListing first seen on site
General Features
Acres 
0.91
Garage 
Yes
Garage Spaces 
1
Land Lease 
No
Parking 
Detached
Parking Spaces 
1
Property Condition 
Updated/Remodeled
Property Sub Type 
Single Family Residence
SqFt Above 
4711
SqFt Below 
1074
SqFt Total 
7131
Utilities 
Sewer Connected
Water Source 
Public
Zoning 
R-3
Interior Features
Appliances 
Electric Water HeaterGas Water Heater
Fireplace 
Yes
Fireplaces 
2
Flooring 
HardwoodCarpet
Heating 
Natural GasElectric
Interior 
Kitchen Island
Main Level Bedrooms 
1
Save
Ask
Tour
Hide
Share
Exterior Features
Construction Details 
FrameWood Siding
Fencing 
Partial
Lot Features 
Views
Roof 
Composition
Community Features
Financing Terms Available 
CashConventional1031 Exchange
MLS Area 
Moscow - 2070
Roads 
Paved
School District 
Moscow School District #281
Schools
School District
Moscow School District #281
Elementary School
McDonald
Middle School
Moscow
High School
Moscow
Listing courtesy of Moscow Realty jen@moscowrealty.com



Listing information is provided by Participants of the Intermountain Multiple Listing Service. IDX information is provided exclusively for personal, non-commercial use, and may not be used for any purpose other than to identify prospective properties consumers may be interested in purchasing. Information is deemed reliable but not guaranteed. Copyright 2025, Intermountain Multiple Listing Service.
Last checked: 2025-11-07 05:02 AM UTC

Neighborhood & Commute
Source: Walkscore
Disclosure: Community information and market data powered by Constellation Data Labs. Information is deemed reliable but not guaranteed.
Save
Ask
Tour
Hide
Share