Browse Properties

Homes for sale in Idaho

Search Filters
Save
Ask
Tour
Hide
Share
$867,000
10 Days On Site

124 Mill Creek Mdw
Grangeville, ID 83530

For Sale|Single Family Residence|Active
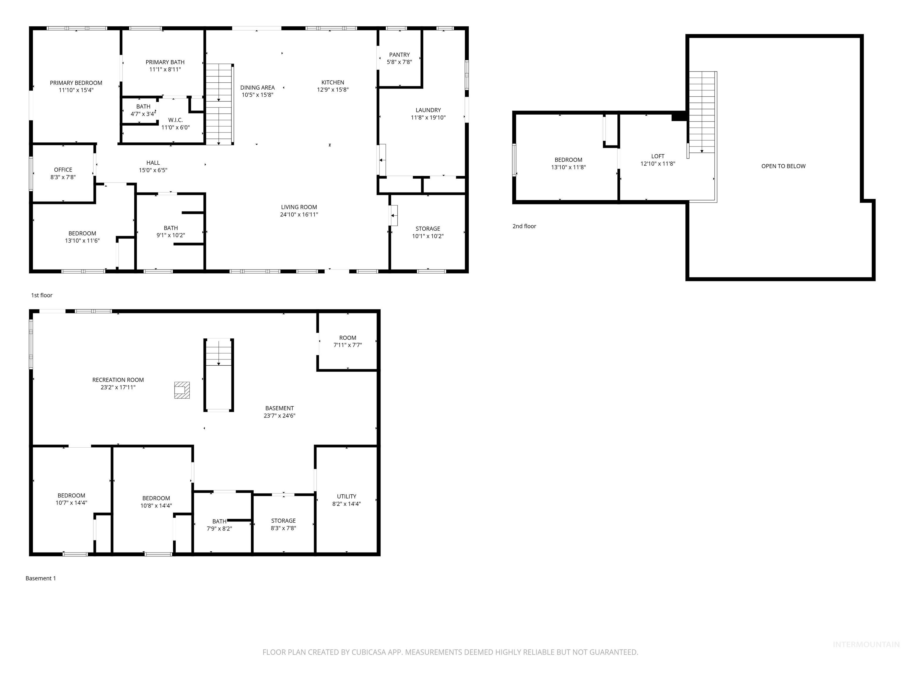
5
Beds
3
Total Baths
3,744
SqFt
$232
/SqFt
2019
Built
Subdivision:
0 Not Applicable
County:
Idaho
Listing courtesy of Silvercreek Realty Group (208) 507-3377
Call Now: 208-308-9500
Is this the listing for you? We can help make it yours.
208-308-9500
124 Mill Creek Mdw124 Mill Creek Mdw124 Mill Creek Mdw124 Mill Creek Mdw
Save
Ask
Tour
Hide
Share

Mortgage Calculator

Monthly Payment (Est.)

$3,956
Calculator powered by Showcase IDX, a Constellation1 Company. Copyright ©2026 Information is deemed reliable but not guaranteed.

Welcome to this exceptional mountain farmhouse set on 10 acres of productive hay and pasture in the desirable Mill Creek Valley, offering gorgeous panoramic views, end-of-road privacy, and abundant wildlife—all just 10 minutes from Grangeville. Built in 2019, this 5-bedroom, 3-bath, 3,744 sq ft home showcases timeless craftsmanship and a warm mountain aesthetic. Exterior features include a heavy 24-gauge Galvalume corrugated roof, cedar siding with two-step fascia and trim, and black Marvin thermal pane windows. The open-concept interior features vaulted ceilings with fir timber rafters, solid wood flooring, custom cabinetry, and a spacious kitchen with large island and pantry, ideal for entertaining. The walk-out basement offers in-slab radiant heat and a wood stove, creating a cozy and functional living space. Enjoy outdoor living from the covered porch and acid-stained concrete patio. The property includes a 40x50 barn with loft, tack room, and concreted shop area, woodshed, and professionally installed rail and Kencote horse fencing. A large, high-fenced garden and orchard feature raspberries, strawberries, grapes, hardy kiwi vine, and peach, apple, apricot, cherry, and mulberry trees. Watch elk, deer, turkeys, and geese roam through the valley. Private, peaceful, and well cared for—this is refined country living at its best.

Save
Ask
Tour
Hide
Share
Listing Snapshot
Price 
$867,000
Days On Site 
10 Days
Bedrooms 
5
Inside Area (SqFt) 
3,744 sqft
Total Baths 
3
Full Baths 
N/A
Partial Baths 
N/A
Lot Size 
9.783 Acres
Year Built 
2019
MLS® Number 
98971383
Status 
Active
Property Tax 
$1,914
HOA/Condo/Coop Fees 
N/A
Sq Ft Source 
Other
Friends & Family
Recent Activity
a week agoListing updated with changes from the MLS®
a week agoListing first seen on site
General Features
Acres 
9.783
Additional Property Use 
Single Family
Garage 
Yes
Garage Spaces 
1
Land Lease 
No
Levels 
Two
Parking 
Carport
Parking Spaces 
1
Property Sub Type 
Single Family Residence
Sewer 
Other
SqFt Above 
3744
SqFt Total 
3744
Water Source 
Well
Interior Features
Appliances 
RangeOvenElectric Water HeaterDishwasherRefrigeratorWasherDryerGas OvenGas Range
Basement 
DaylightWalk-Out Access
Fireplace 
Yes
Fireplace Features 
Wood Burning Stove
Flooring 
HardwoodConcrete
Heating 
ElectricRadiantWood
Interior 
Walk-In Closet(s)PantryKitchen Island
Main Level Bedrooms 
2
Save
Ask
Tour
Hide
Share
Exterior Features
Construction Details 
Wood Siding
Fencing 
Partial
Lot Features 
GardenViews
Other Structures 
Barn(s)
Roof 
Metal
Community Features
Financing Terms Available 
CashConventional
Horse Allowed 
Yes
MLS Area 
Idaho County - 1950
School District 
Mountain View District #244
Schools
School District
Mountain View District #244
Elementary School
Grangeville
Middle School
Grangeville
High School
Grangeville
Listing courtesy of Silvercreek Realty Group (208) 507-3377



All listings displayed pursuant to IDX shall show IMLS as the source of the information by using the approved MLS icon. IDX information is provided exclusively for consumers’ personal, non-commercial use, that it may not be used for any purpose other than to identify prospective properties consumers may be interested in purchasing. IMLS does not assume any liability for missing or inaccurate data. Information provided by IMLS is deemed reliable but not guaranteed. Copyright 2026, Intermountain Multiple Listing Service.
Last checked: 2026-01-20 09:29 PM UTC

Neighborhood & Commute
Source: Walkscore
Disclosure: Community information and market data powered by Constellation Data Labs. Information is deemed reliable but not guaranteed.
Save
Ask
Tour
Hide
Share